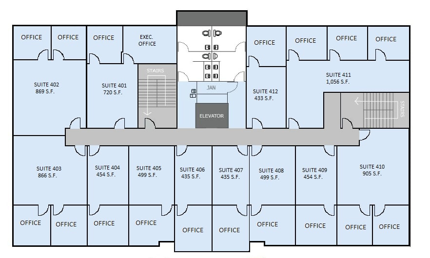
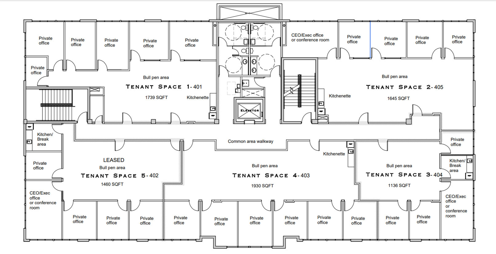
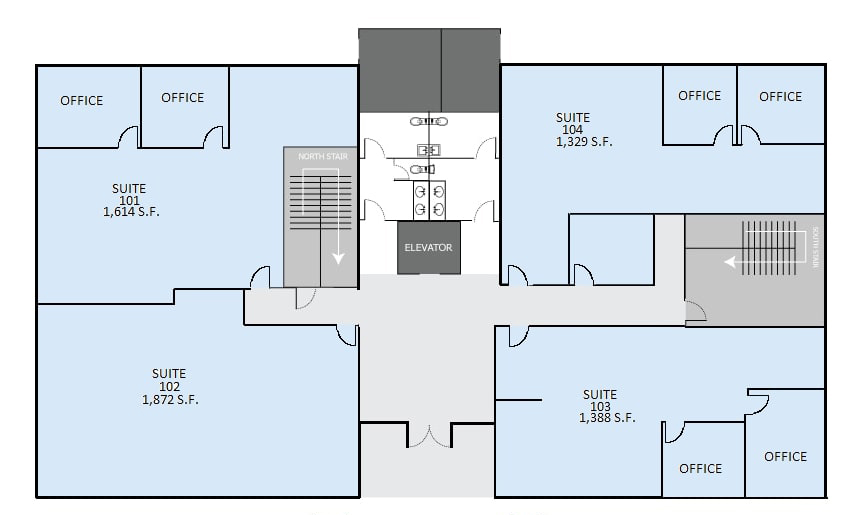
Professional Center At Riviera Point
Unit 403 is ready now, with Units 102 and 302 opening on 12/25. Contact us to find the space that fits you best.
Contact us!